电动、伞齿轮传动铁制暗杆闸阀
产品概述:
Z941W电动闸阀供适用于轻重工业及楼宇管道,流体前进的道路上。【闸阀】可应用于:化工、石化、石油、造纸、采矿、电力、液化气、食品、制药、给排水、市政、机械设备配套、电子工业,城建等领域。
电动法兰闸阀是由闸阀阀体配用多回转式电动执行器,使阀板作上下直线运动,实现远程控制阀位开关,方便快捷。电动法兰闸阀适用于公称压力PN1.6~16.0MPa,工作温度≤-29℃~500℃的石油、化工、水力、火力电站等系统的管路上实现远程控制阀位开关,切断或接通管路介质。电动契式闸阀适用介质为:水、油品、蒸气、及酸、碱、氨、尿素、含硫天然气等。
- 技术参数
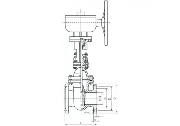
- 外型尺寸
- 零件材料
- 下载中心


